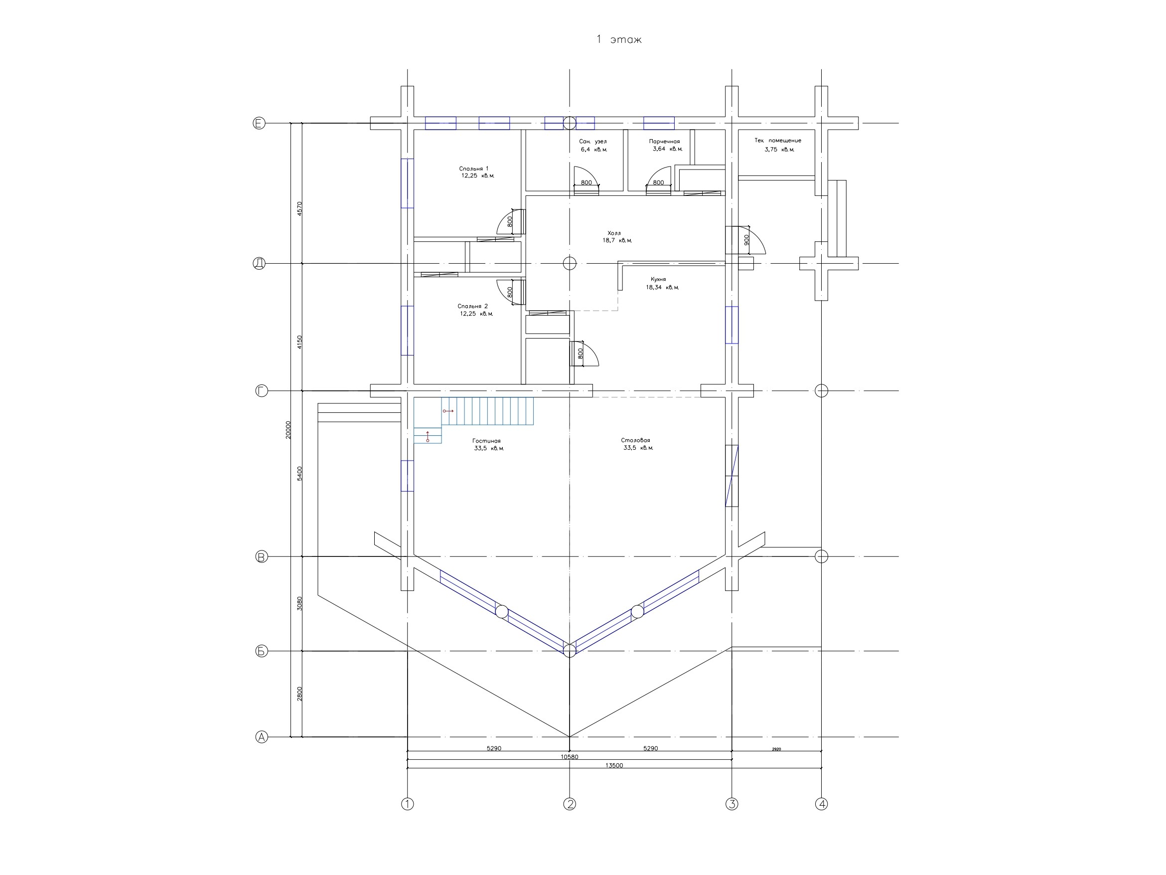
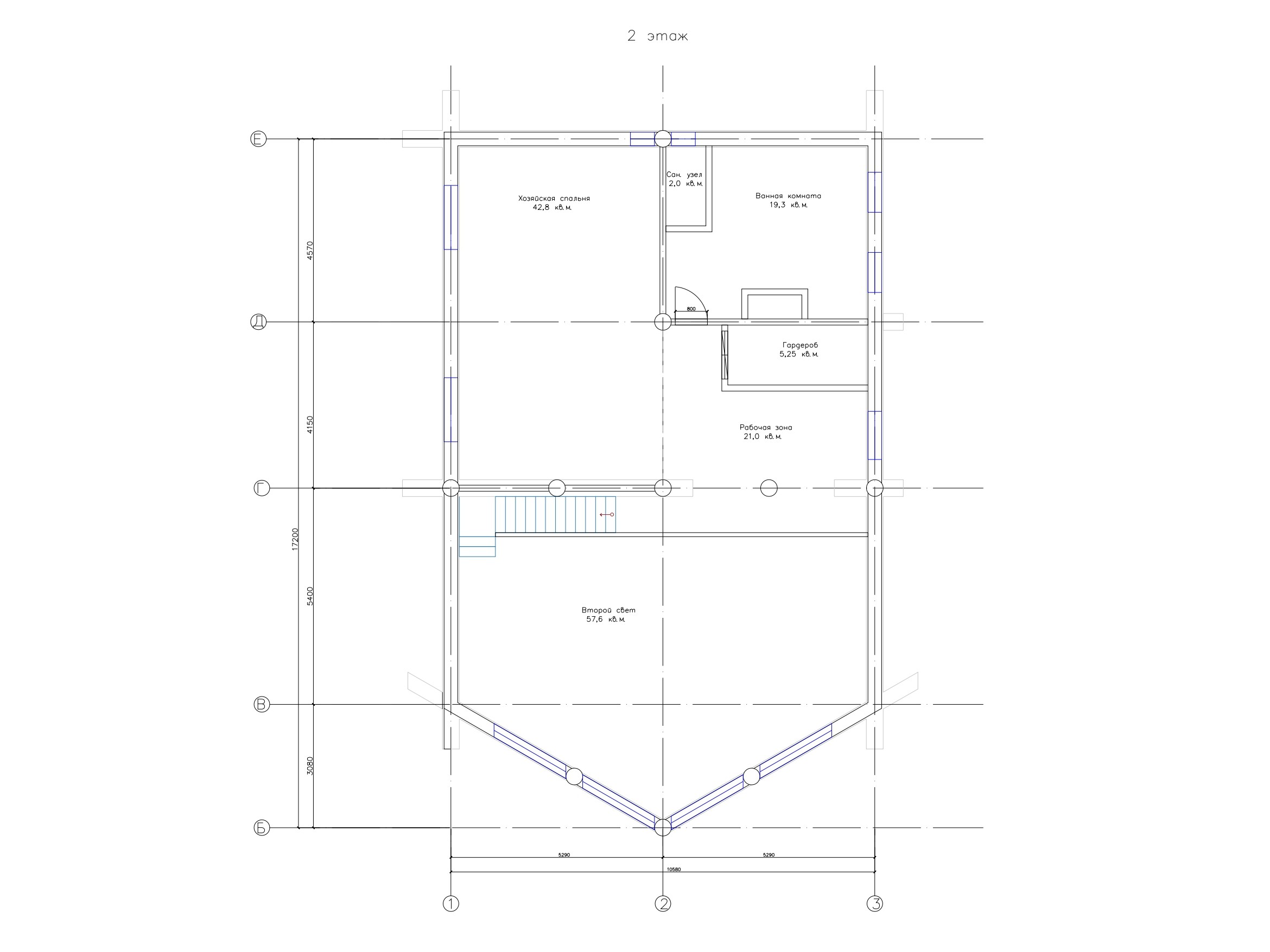
Дом 17,2х10,58.
Цена от 145 тыс. руб. / м.кв

Этажность: 2 основных этажа
Стоимость указана за дом с отделкой и инженерными сетями.