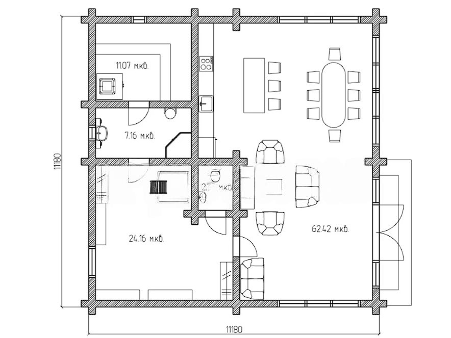
Баня 11,20х11,20.

Общая площадь 126 м.кв.
Этажность: 1.
Срок строительства: 5 месяцев.
Стоимость указана за дом с отделкой и инженерными сетями.

Цена от 14 700 000 руб.